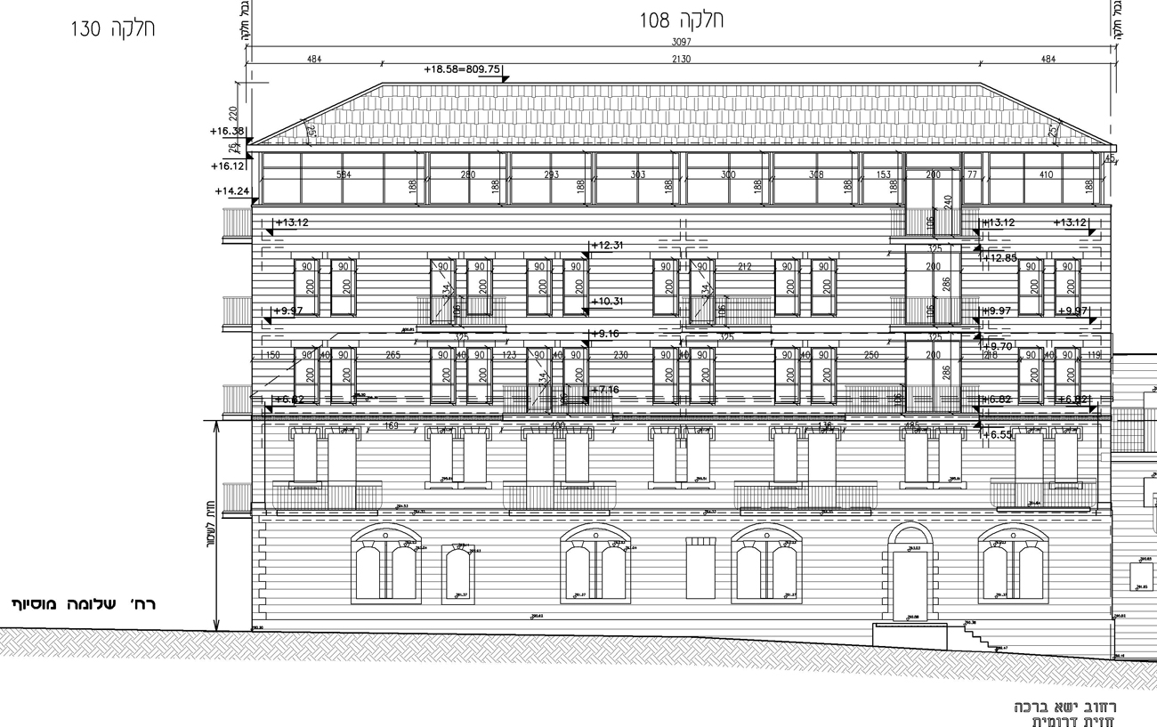
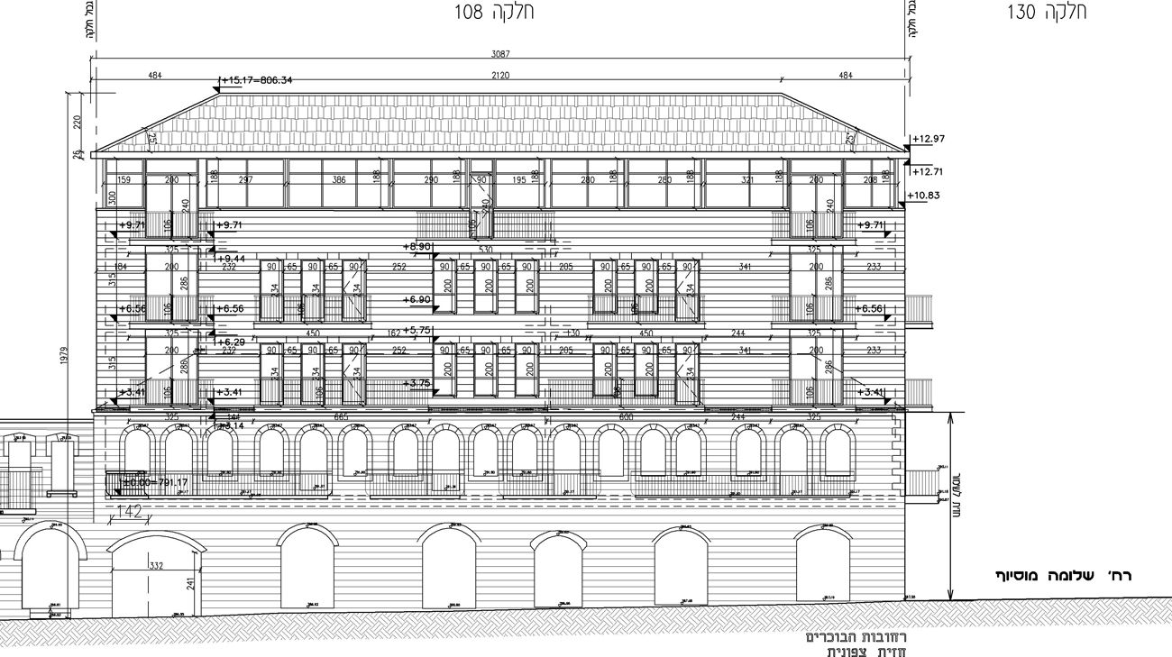
שכונת הבוכרים
מבנה מגורים. תמ"א 38
רח' שלמה מוסיוף. שכונת הבוחרים
מיקום
2018
שנה
בתכנון
סטטוס